
A-FRAME 90
A-FRAME 90 – Притяжение простоты и элегантности
Описание:
Откройте для себя шарм A-FRAME 90, нашего уютного и элегантного жилища с лофтом, воплощающего современный подход к компактному дизайну. Строгие линии крыши и панорамное остекление фасада создают неповторимый образ, который отлично вписывается в любой ландшафт.
Площадь:
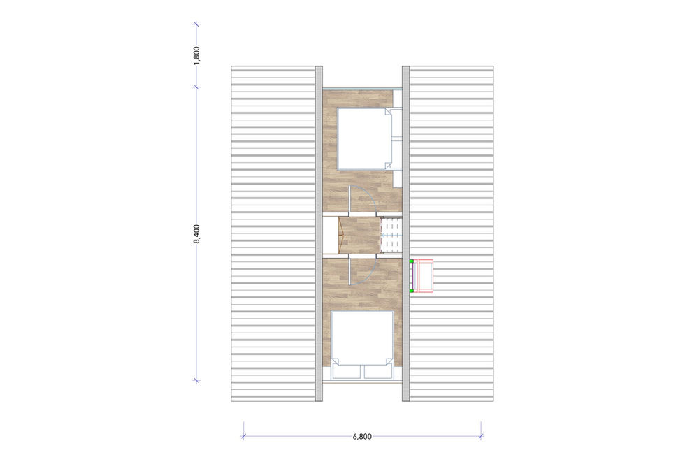
Этот одноэтажный дом с дополнительным лофтом предлагает просторные 90 квадратных метров жилой площади, деликатно разделенные на зоны отдыха и активности.
Комнаты:
2 спальни: Уютные и приватные, обе спальни спроектированы с акцентом на комфорт и функциональность.
1 санузел: Современный и практичный, оснащен всем необходимым для ежедневного удобства.
Гостиная: Сердце дома, где каждый квадратный сантиметр продуман для совместных семейных вечеров и дружеских встреч.
Лофт: Идеальное место для уединения или в качестве дополнительной спальной или рабочей зоны.
Терраса: Просторная и открытая терраса приглашает насладиться видами и свежим воздухом, являясь идеальным местом для отдыха на свежем воздухе.
Особенности:
Панорамное остекление: Стены из стекла не только увеличивают естественное освещение, но и расширяют пространство, стирая границы между внутренним и внешним миром.
Архитектурный стиль A-FRAME: Эта классическая форма не только привлекает внимание своей визуальной привлекательностью, но и обеспечивает отличную устойчивость и легкость в обслуживании.
Компактность: Идеальный выбор для тех, кто ценит минимализм без ущерба для комфорта и стиля.
A-FRAME 90 – это более чем просто дом; это место, где современная архитектура встречается с уютом, создавая идеальное пространство для жизни.
OVERVIEW:
Design:
Floors:
Gross area:
Net area:
Terrace:
Bedrooms:
Bathrooms:
Garage spots:
A-Frame
2
90
76
14
2
1

















